Navigation
Dessiner
Actualité
Inspiration
Calendrier
Forum
Aide
Versions
Inscription
Connexion
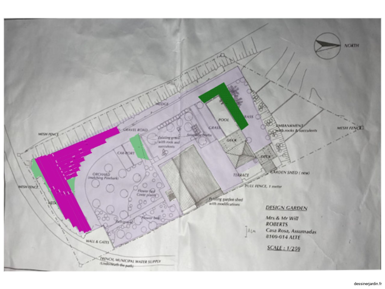
Casa Rosa
Utiliser ce plan
Plan réalisé par :
Tamtamportugal
Partage : Public en utilisation